Haus K

Kahlfeldt Architekten Gesellschaft von Architekten mbH

Haus K

WACHGEKÜSST AUS DEM DORNRÖSCHENSCHLAF

Ein ehemaliges Gleichrichterwerk aus den 20er Jahren erfährt nach Jahrzehnten des Leerstandes seine neue Bestimmung als Wohnhaus.


Dem Architektenteam ist es gelungen, die geschlossene historische Form zu bewahren und dennoch etwas völlig Neues zu schaffen. Mit erstaunlich wenigen Umbauschritten schufen sie aus einem technischen Spezialbau ein großzügiges Wohngebäude. Das als „Bestes Sanierungsprojekt“ und mit dem 3. Platz als Gesamtsieger des Fritz-Höger-Preises 2008 ausgezeichnete Haus ist ein Paradebeispiel zeitloser Architektur und nachhaltiger Nutzung bestehender Bausubstanz. Sich permanent verändernde Bedingungen der Stromverteilung haben nahezu alle dafür errichteten Gebäude überflüssig werden lassen, so auch ein im Vorortbezirk Zehlendorf gelegenes Gleichrichterwerk. 1928 zur Versorgung der Straßenbahnen mit Gleichstrom gebaut, verlor es bereits Anfang der sechziger Jahre seine Bestimmung. Nur eine kurze Nachnutzung durch die Freie Universität unterbrach den jahrzehntelangen Leerstand. In einem vornehmen Wohngebiet gelegen, verhinderten eine verkehrsreiche Hauptstraße und die Nachbarschaft banaler Baukörper der Nachkriegszeit eine neue Nutzung. Nach mehreren vergeblichen Anläufen fand sich erst vor kurzem ein Erwerber, der die verdeckten Qualitäten erkannte.

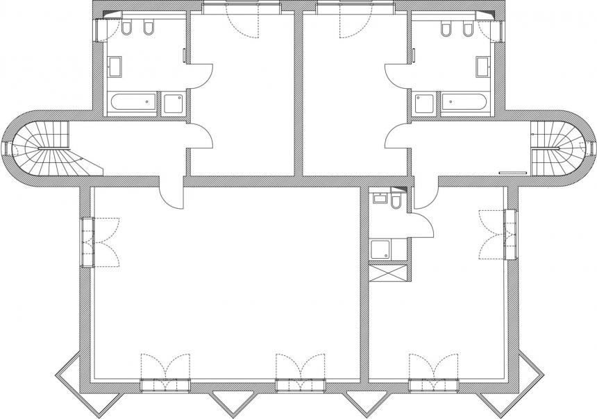
Das zweigeschossige Gebäude aus Rathenower Ziegeln ruht, aus der Bauflucht zurückgesetzt, auf einem flachen Sockel. Dieser diente der Einbringung der in drei Kammern im Erdgeschoss aufgestellten Transformatoren. Das Obergeschoss beherbergte die notwendigen Schaltanlagen und Spulen. Kabeltrassen und Schächte verbanden die aus Gründen des Brandschutzes geschlossenen Räume miteinander. Ursprünglich war die Errichtung eines Typenbaus vorgesehen, der jedoch aus gestalterischen Gründen von der Genehmigungsbehörde abgelehnt wurde. Der Architekt Hans Müller, der über vierzig Gebäude der Stromverteilung in Berlin zwischen 1924 und 1930 errichtete, skizzierte eigenhändig auf die Ansichtszeichnungen des Bauantrags die Gliederung der Fassade durch dreieckig hervortretende Pilaster und bekrönte den schlichten Baukörper durch ein lagenweise herauswölbendes Gesims. Diese Elemente beherrschte Müller grandios und hatte sie auch bei anderen Bauten angewendet. In diesem Fall erfüllen sie jedoch außer der Gestaltung keine technischen Funktionen.


Kahlfeldt Architekten Gesellschaft von Architekten mbH

Ort
Berlin-Zehlendorf, Deutschland
Grundstückfläche
560 m²
Bauzeit
1928, Umbau 2007