Neubau Bauhof Hansmann
harter+kanzler Freie Architekten BDA
Industriebau mit Vorbildcharakter
Gewerbegebiete sind in der Regel städtebauliche und architektonische Stiefkinder der Städte und Gemeinden.

Gewerbliche Objekte werden kompromisslos der sogenannten Kosten-Nutzen Betrachtung unterworfen. Wie werbewirksam ein Gewerbebau sein kann, der durch seine Architektur, Nachhaltigkeit in der Materialwahl und energetisch fortschrittlicher Konzepte durchdacht ist, wird oft nicht bedacht.
Solch eine Ausnahme ist in Haslach/Kinzigtal anzutreffen. In der Nachbarschaft zu den üblichen Gewerbebauten entstand für ein Baugeschäft ein beachtenswertes Betriebsgebäude. Der Bauherr und seine Frau waren sich offensichtlich einig über die Werbewirksamkeit „ihres“ neuen Gebäudes, in Bezug auf die klare, handwerkliche Detailansicht und die besondere Gestaltung und Außendarstellung.
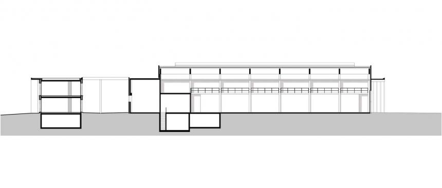
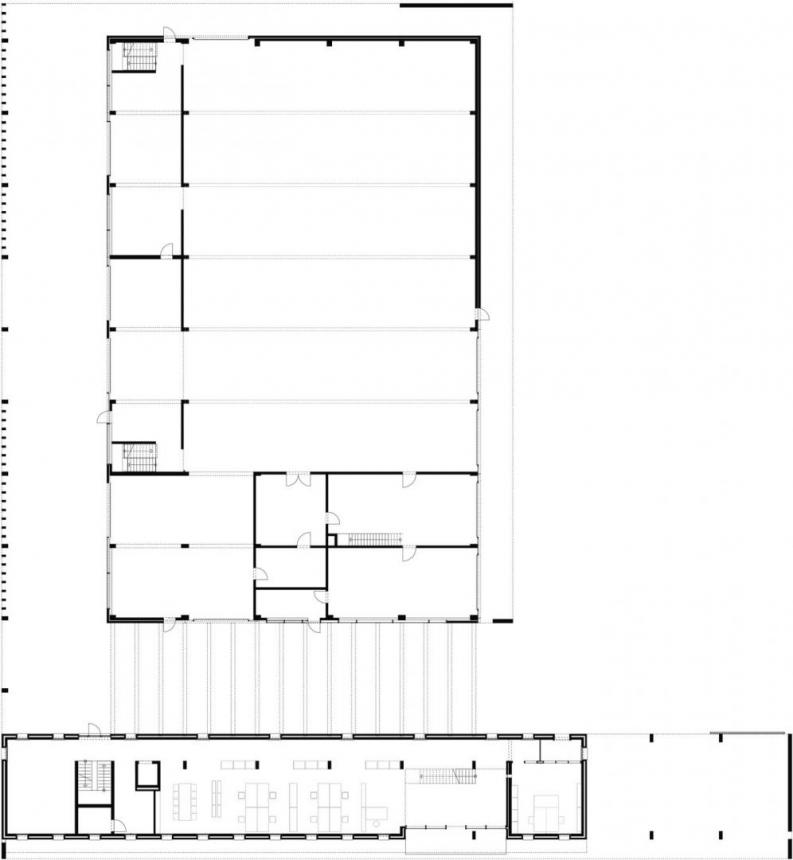
Auf Wunsch des Bauherrn sollten fast ausschließlich Bauelemente verwendet werden, die in Form und Material die Tätigkeit des Bauunternehmens widerspiegeln. Folgerichtig prägen Sichtbeton und Klinker den Bau innen wie außen, nach dem Prinzip: Rohbau = Ausbau. Analog zur Klinkerfassade erstreckt sich der mit Klinkern belegte Fußboden. Das warme Grau des Sichtbetons gestaltet Wände und Decken.
Geheizt wird mit einer 200-KW-Hackschnitzelanlage, die größtenteils aus Altholz der Firma betrieben wird. Der Lagerraum befindet sich im UG des Hallenbereiches mit direkter Einbringöffnung im Boden für Lkw und Kranbahn. Zusätzlich ist eine Photovoltaikanlage als Glasüberdeckung des Zwischenraums der Verwaltung und der Halle vorgesehen.
Das neue Betriebsgebäude der Firma Hansmann dokumentiert die Einstellung des Bauherrn zum qualitätvollen, nachhaltigen Bau, unterstreicht die handwerkliche Leistungsfähigkeit bis hin zur Liebe zum Detail. Es zeigt sich auch, dass der reinen Kosten-Nutzen-Analyse eine wichtige Komponente hinzugefügt werden soll, die Darstellung eines Bauwerkes nach außen. Funktionalität als Selbstverständlichkeit, Ausstrahlung, Identifikation in der eigenen Schaffenskraft.
harter+kanzler Freie Architekten BDA