Senckenberg Biodiversität und Klima Forschungszentrum (SBIK-F)

SSP AG

Senckenberg Biodiversität und Klima Forschungszentrum (SBIK-F)

Sanierung Statt Abriss

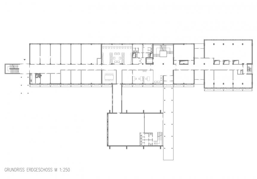
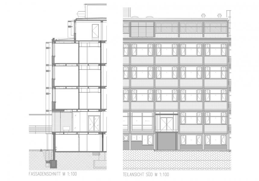
Das Gebäude wurde 1954-57 von Ferdinand Kramer als Institut für Pharmazie und Lebensmittelchemie gebaut. Im städtebaulichen Rahmenplan für das Kerngebiet Bockenheim bildet es den südlichen Abschluss des Campus. Für die Nutzung des Gebäudes durch das Forschungszentrum BiK-F war eine Kernsanierung notwendig. Das Gebäude wurde bis auf die Tragstruktur zurückgeführt. Im Bereich der Rippendecken war teilweise eine Betonsanierung nötig sowie eine Ertüchtigung für den Brandschutz. Die Fassade des Gebäudes steht unter Denkmalschutz.

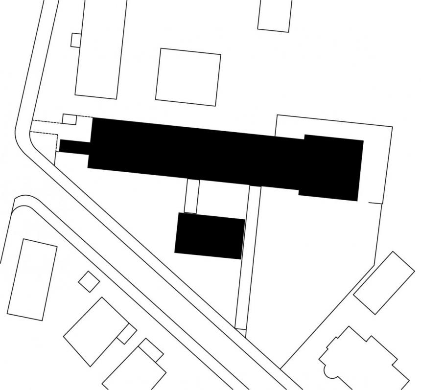
Es wurden alle Fenster ausgetauscht und durch die Verwendung von Holzfenstern (außen: Aluminium) konnte das schlanke Profilbild erhalten bleiben. Der neue Grundriss übernimmt die wesentlichen historischen Vorlagen. Die neue Ausstattung des Gebäudes orientiert sich sowohl an den Anforderungen des Nutzers wie auch an der ursprünglichen Gestaltung Ferdinand Kramers. Die Grundidee war nicht zu konservieren, sondern im Kramerschen Sinne weiter zu bauen. Im Treppenhaus und im Hörsaal konnten die ursprünglichen Glasbausteine erhalten bleiben. Das außenliegende Ost-Treppenhaus konnte durch die Anbringung von Stahlbügeln gerettet werden. Die neu errichtete Mesokosmenhalle wurde bewusst an einer Stelle errichtet, die auch Kramer schon für eine mögliche Erweiterung vorgesehen hatte, wie einem alten Lageplan zu entnehmen ist. Entsprechend des städtebaulichen Rahmenplans für Bockenheim endet auf ihr einer der wesentlichen Grünstreifen und kann so bis direkt vor das historische Gebäude führen.

SSP AG

Ort
Frankfurt am Main, Deutschland
Bauherr
Senckenbergische naturforschende Gesellschaft
Architektenprofil
Grundstückfläche
5.649 m²
Bebaute Fläche
2.243 m²
Nutzungsfläche
3.930 m²
Umbauter Raum
29.900 m³
Bauzeit
2009 – 2013
Baukosten
18,6 Mio. EUR